詳細信息
ZKS型折板式(shì)消聲器用途(tú)
ZKS折板(bǎn)式消聲器是經改(gǎi)良的(de)一種片式阻性消聲器,吸音片呈折板狀,增加了聲波的反射次數,使得消聲性能(néng)提高,該消聲器采用(yòng)玻璃棉作吸音材料(liào),鍍鋅穿孔板和超細玻璃棉布為(wéi)護板,管道有效通道大,壓力損失小,是一種(zhǒng)性能優良的消聲器。主要也是利用多孔吸聲材料(liào)來降(jiàng)低噪聲的。除了把吸聲材料固(gù)定在氣(qì)流通道的內壁(bì)上意外,還要將阻性折板式吸聲原件按一(yī)定的(de)方式均勻(yún)的排列在通(tōng)道內,就構(gòu)成了阻性折板式消音器。為減小消聲器的阻力,折板消聲片迎氣流(liú)端部可設導流頭。當聲波進入阻性消(xiāo)音器時,一部分聲能在多孔材料的孔(kǒng)隙中(zhōng)摩擦而轉化成(chéng)熱能(néng)耗散掉(diào),使通(tōng)過消音器的聲波減(jiǎn)弱。由於折板(bǎn)相對片式的元件的通(tōng)道略(luè)有加長,且聲波在折板通道內反複多次折射碰撞,增加了聲波與吸聲元件接觸的時間,所以消聲性能有所增加。但反複折射(shè)碰撞也加大了阻力損失(shī)。
ZKS型折板式(shì)消聲器性能特點
1、ZKS型折板式消聲器消聲性能以中高頻(pín)為主,消聲量及壓力損失大(dà)於片式消聲器,長度(dù)L=900mm,一般以1-2節為宜。在ZKS型折板式消聲器外殼加隔聲(shēng)處理後,即(jí)為ZKSA型,其消聲性能與壓(yā)力損失和ZKS型(xíng)折板式消聲器(qì)相同。消聲量及壓(yā)力損失大於(yú)(22~25dB(A)/m,40Pa/m)片式消(xiāo)聲器。
2、當消聲器設在機房或噪聲(shēng)高的房間時宜采用ZKSA型折板式消聲器。
3、ZKS型消聲器不宜配置在機房內或其他噪聲高(gāo)的房(fáng)間內,以防止聲(shēng)短路。
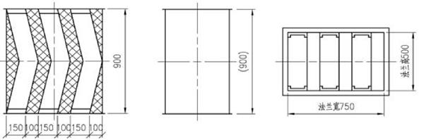
ZKS型這辦(bàn)事消(xiāo)聲器結構圖
ZKS型折板式消聲器性能規格表(biǎo)
注:1、若需要更大規格的消聲器,可按國外標準風管所列法(fǎ)蘭尺寸設計製造;
2、鍍鋅鋼板風管(guǎn)法(fǎ)蘭寬度按2002年規範製作(zuò),玻鎂風管法(fǎ)蘭寬度按50mm製作;
3、為了同用戶的安裝尺寸保持一(yī)致(zhì),若用戶沒有注(zhù)明,法蘭不(bú)打孔。